| Niveau | Pièce | Surface |
|---|
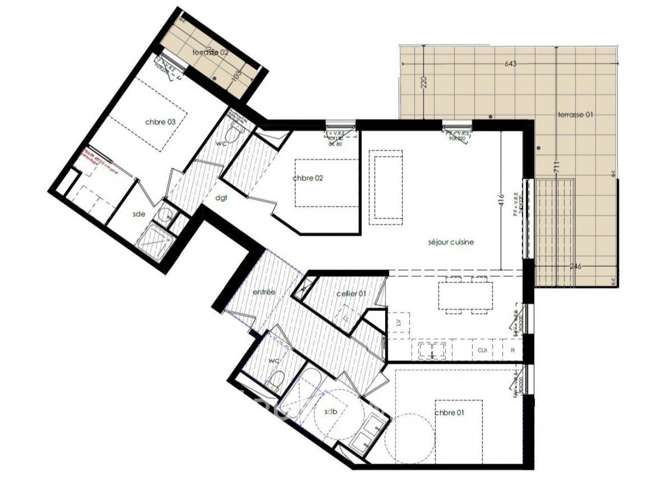
Découvrez ce superbe appartement T4 de pratiquement 94 m² au 3ème et dernier étage, bénéficiant d’une vue dégagée sur le parc de la Peyrière et d’un agencement optimisé.
À distance piétonne des commodités et des transports (1 km), il offre une qualité de vie rare.
Sa distribution est optimisée:
- Une Entrée avec placard
- Un Séjour/cuisine d’environ 31 m², lumineux (trois ouvertures) et prolongé par une grande baie coulissante.
- Un Cellier / buanderie attenant.
- Un espace nuit principal : une suite parentale avec salle d’eau et WC séparé (dressing possible selon aménagement), donnant sur un petit balcon côté jardin intérieur de la résidence.
- Un second espace nuit : 1 chambre, 1 salle de bains avec meuble double vasque, et WC séparé.
- et une 3ème chambre ou bureau mitoyen de la pièce de vie, pouvant être ouvert pour agrandir encore le séjour (selon faisabilité technique).
Cet appartement bénéficie de hauteur sous plafond de 2,70m et vous assure une belle luminosité grâce à 3 ouvertures dans l'espace de vie dont une baie coulissante s'ouvrant sur une magnifique terrasse de 26 m², véritable prolongement extérieur, avec une vue dégagée à 180° sur le parc.
L'isolation est optimale grâce aux dernières normes de construction RE2020.
L'appartement sera prêt à habiter en Avril 2026.
Un double box privatif est proposé à 36 000 €.
Car vous l'aurez compris vous bénéficiez d'un tarif spécifique pour les frais de notaire à savoir environ 10 000€.
Contactez Agnès Mouron pour plus de renseignements et une possible visite.
06 60 09 03 96
Notre barème d'honoraires
Bien soumis au statut juridique de la copropriété. Nb de lot :0.
* Honoraires charge vendeur.
- Surface 94 m²
- Pièce(s) 4 pièce(s)
- Chambre(s) 3 chambre(s)
- Terrain NC
cette annonce à un ami
Veuillez réessayer à nouveau










































