| Niveau | Pièce | Surface |
|---|
OPUS IMMO vous présente
Au Grau-du-Roi, découvrez ce superbe appartement T3 de 81 m² pondérés, situé dans une résidence récente avec rooftop et piscine commune — un lieu de vie privilégié entre mer, soleil et élégance.
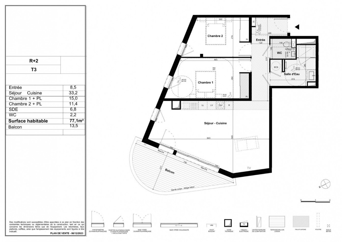
L’appartement se compose d’une entrée desservant deux chambres avec placard de 15 m² et 11,4 m², d’un toilette séparé avec lave-mains, et d’une spacieuse salle d’eau de 7 m².
Le séjour avec cuisine ouverte développe 33,2 m² et s’ouvre sur une terrasse de 13,5 m² exposée Ouest, idéale pour profiter pleinement des belles journées et des couchers de soleil.
Deux places de stationnement privatives complètent le confort de ce bien.
La résidence se distingue par son architecture contemporaine, ses prestations haut de gamme et son cadre apaisant à deux pas de la mer.
Un lieu pensé pour conjuguer confort au quotidien et plaisir de vivre en bord de mer, dans un environnement à la fois moderne et préservé. Surface CARREZ : 77 m²
Notre barème d'honoraires
* Honoraires charge vendeur.
- Surface 77 m²
- Pièce(s) 3 pièce(s)
- Chambre(s) 2 chambre(s)
- Terrain NC
cette annonce à un ami
Veuillez réessayer à nouveau





















































